Top.Mail.Ru

улица Фомичевой, д. 16, к. 5

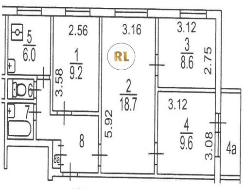
База каталог, Кол-во подъездов: 6, II-49Д, Москва, Северное Тушино, Площадь парковки: 0, Пассажирский лифт: 6, От метро: 93, Северо-Западный, нет, Наименьшее кол-во этажей: 9, Наибольшее кол-во этажей: 9, Планерная, Кол-во помещений: 215, Кол-во нежилых помещений: 8, Год ввода в эксплуатацию: 1967, 4-комн, Кол-во жилых помещений: 207, Не присвоен, дом 16, корпус 5, да, да, да, да, да, да, Имеется, Грузовых лифтов: 0, Год постройки: 1967, улица Фомичевой, 37.437622, 55.859120
Свяжитесь со мной на счет цены
10 дн.
V55S859120L37S437622V

На карте


Условия сделки

Источник


Старт продаж

Возможно заинтересует