Top.Mail.Ru

Фестивальная ул., д. 24, к. 2

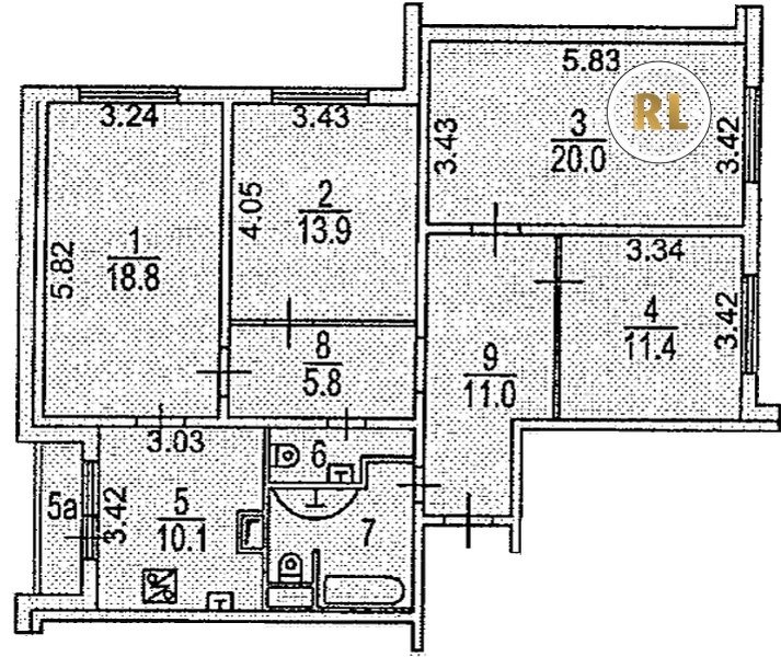
База каталог, Кол-во подъездов: 1, КОПЭ, Москва, Ховрино, Площадь парковки: 0, Пассажирский лифт: 2, От метро: 1960, Северный, нет, Наименьшее кол-во этажей: 18, Наибольшее кол-во этажей: 18, Речной вокзал, Кол-во помещений: 72, Кол-во нежилых помещений: 1, Год ввода в эксплуатацию: 2003, 4-комн, Кол-во жилых помещений: 71, дом 24, корпус 2, нет, да, да, да, нет, нет, Имеется, Грузовых лифтов: 1, Год постройки: 2003, Фестивальная улица, 37.501735, 55.859332
Свяжитесь со мной на счет цены
10 дн.
V55S859332L37S501735V

На карте


Условия сделки

Источник


Старт продаж

Возможно заинтересует