Top.Mail.Ru

Флотская ул., д. 78

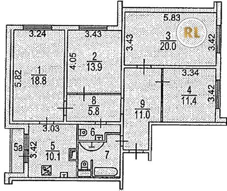
База каталог, Кол-во подъездов: 3, КОПЭ, Москва, Головинский, Площадь парковки: 0, Пассажирский лифт: 5, От метро: 2530, Северный, нет, Наименьшее кол-во этажей: 22, Наибольшее кол-во этажей: 22, Коптево, Кол-во помещений: 260, Кол-во нежилых помещений: 8, Год ввода в эксплуатацию: 2001, 4-комн, Кол-во жилых помещений: 252, E, дом 78, нет, да, да, нет, нет, нет, Грузовых лифтов: 4, Год постройки: 2001, Флотская улица, 37.513583, 55.859574
Свяжитесь со мной на счет цены
10 дн.
V55S859574L37S513583V

На карте


Условия сделки

Источник


Старт продаж

Возможно заинтересует