Top.Mail.Ru

Фестивальная ул., д. 24

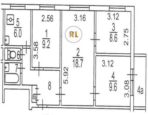
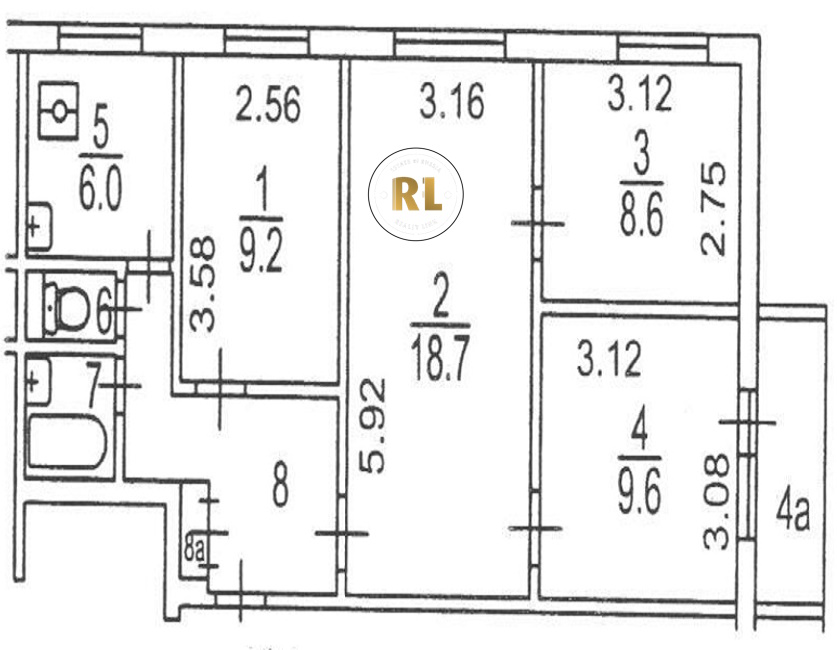
База каталог, Кол-во подъездов: 6, Отсутствует, II-49, Москва, Ховрино, Площадь парковки: 0, Пассажирский лифт: 6, От метро: 1850, Северный, нет, Наименьшее кол-во этажей: 9, Наибольшее кол-во этажей: 9, Речной вокзал, Кол-во помещений: 215, Кол-во нежилых помещений: 0, Год ввода в эксплуатацию: 1967, 4-комн, Кол-во жилых помещений: 215, E, дом 24, нет, да, да, да, нет, нет, Имеется, Грузовых лифтов: 0, Год постройки: 1967, Фестивальная улица, 37.500567, 55.860069
Свяжитесь со мной на счет цены
10 дн.
V55S860069L37S500567V

На карте


Условия сделки

Источник


Старт продаж

Возможно заинтересует