Top.Mail.Ru

улица Свободы, д. 73, к. 1

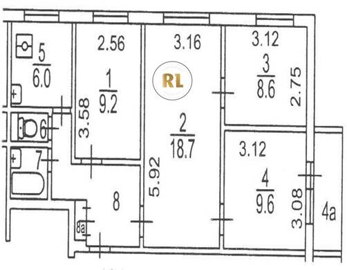
База каталог, Кол-во подъездов: 12, Имеется, II-49Д, Москва, Северное Тушино, Площадь парковки: 0, Пассажирский лифт: 24, От метро: 800, Северо-Западный, нет, Наименьшее кол-во этажей: 1, Наибольшее кол-во этажей: 12, Планерная, Кол-во помещений: 574, Кол-во нежилых помещений: 0, Год ввода в эксплуатацию: 1969, 4-комн, Кол-во жилых помещений: 574, Не присвоен, дом 73, корпус 1, нет, да, да, да, да, да, Имеется, Грузовых лифтов: 0, Год постройки: 1969, улица Свободы, 37.446560, 55.860767
Свяжитесь со мной на счет цены
10 дн.
V55S860767L37S446560V

На карте


Условия сделки

Источник


Старт продаж

Возможно заинтересует