Top.Mail.Ru

улица Довженко, д. 12, к. 3

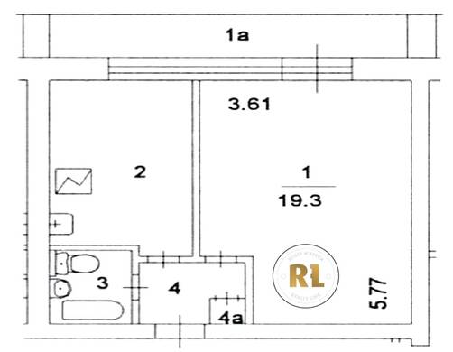
База каталог, Пассажирский лифт: 3, Минская, Наибольшее кол-во этажей: 12, Наименьшее кол-во этажей: 12, нет, Западный, От метро: 850, Нет, Кол-во подъездов: 3, Площадь парковки: 0, Раменки, Москва, II-68, Имеется, нет, Кол-во помещений: 165, Кол-во нежилых помещений: 0, Год ввода в эксплуатацию: 1983, да, Год постройки: 1983, Нет, Грузовых лифтов: 3, Имеется, да, да, да, 1-комн, да, нет, дом 12, корпус 3, Нет, С, Кол-во жилых помещений: 165, улица Довженко, 37.508220, 55.721787
Свяжитесь со мной на счет цены
10 дн.
O55S721787L37S508220O

На карте


Условия сделки

Источник


Старт продаж

Возможно заинтересует