Top.Mail.Ru

Беломорская ул., д. 14, к. 1

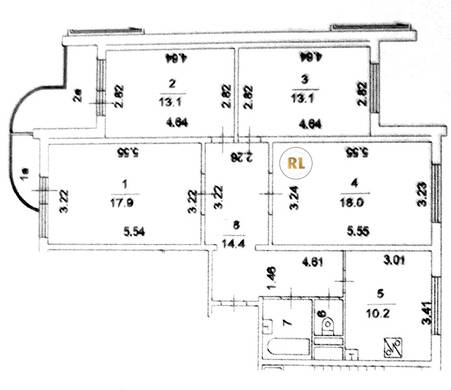
База каталог, Кол-во подъездов: 2, П-ЗМ-3/16, Москва, Левобережный, Пассажирский лифт: 2, От метро: 630, Северный, да, Наименьшее кол-во этажей: 17, Наибольшее кол-во этажей: 17, Беломорская, Кол-во помещений: 139, Кол-во нежилых помещений: 3, Год ввода в эксплуатацию: 2009, 4-комн, Кол-во жилых помещений: 136, С, дом 14, корпус 1, нет, да, да, да, да, да, Грузовых лифтов: 2, Год постройки: 2009, Беломорская улица, 37.470967, 55.861237
Свяжитесь со мной на счет цены
10 дн.
V55S861237L37S470967V

На карте


Условия сделки

Источник


Старт продаж

Возможно заинтересует