Top.Mail.Ru

Планерная ул., д. 12, к. 4

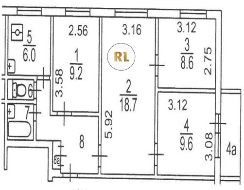
База каталог, Кол-во подъездов: 6, Имеется, II-49Д, Москва, Северное Тушино, Площадь парковки: 0, Пассажирский лифт: 6, От метро: 232, Северо-Западный, нет, Наименьшее кол-во этажей: 9, Наибольшее кол-во этажей: 9, Планерная, Кол-во помещений: 215, Кол-во нежилых помещений: 4, Год ввода в эксплуатацию: 1967, 4-комн, Кол-во жилых помещений: 211, Не присвоен, дом 12, корпус 4, да, да, да, да, да, да, Имеется, Грузовых лифтов: 0, Год постройки: 1967, Планерная улица, 37.439104, 55.861686
Свяжитесь со мной на счет цены
10 дн.
V55S861686L37S439104V

На карте


Условия сделки

Источник


Старт продаж

Возможно заинтересует