Top.Mail.Ru

улица Свободы, д. 81, стр. 3

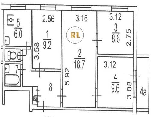
База каталог, Кол-во подъездов: 4, II-49Д, Москва, Северное Тушино, Площадь парковки: 0, Пассажирский лифт: 4, От метро: 510, Северо-Западный, нет, Наименьшее кол-во этажей: 9, Наибольшее кол-во этажей: 9, Планерная, Кол-во помещений: 144, Кол-во нежилых помещений: 0, Год ввода в эксплуатацию: 1970, 4-комн, Кол-во жилых помещений: 144, Не присвоен, дом 81, строение 3, да, да, да, да, да, да, Имеется, Грузовых лифтов: 0, Год постройки: 1970, улица Свободы, 37.442122, 55.861802
Свяжитесь со мной на счет цены
10 дн.
V55S861802L37S442122V

На карте


Условия сделки

Источник


Старт продаж

Возможно заинтересует