Top.Mail.Ru

Фестивальная ул., д. 53, к. 3

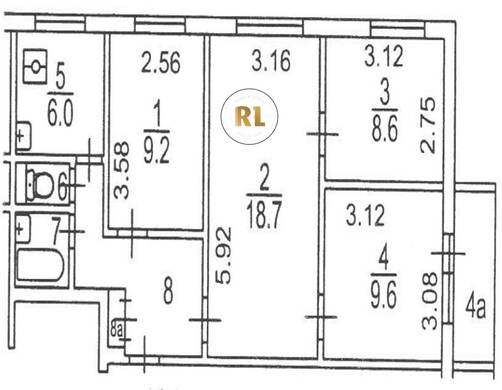
База каталог, Кол-во подъездов: 4, II-49Д, Москва, Ховрино, Пассажирский лифт: 4, От метро: 1500, Северный, да, Наименьшее кол-во этажей: 9, Наибольшее кол-во этажей: 9, Беломорская, Кол-во помещений: 144, Кол-во нежилых помещений: 1, Год ввода в эксплуатацию: 1968, 4-комн, Кол-во жилых помещений: 143, дом 53, корпус 3, нет, да, да, да, да, нет, Грузовых лифтов: 0, Год постройки: 1968, Фестивальная улица, 37.492365, 55.862368
Свяжитесь со мной на счет цены
10 дн.
V55S862368L37S492365V

На карте


Условия сделки

Источник


Старт продаж

Возможно заинтересует