Top.Mail.Ru

Планерная ул., д. 14, к. 2

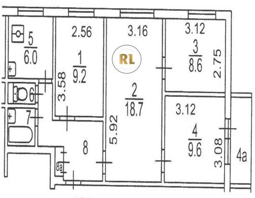
База каталог, Кол-во подъездов: 6, Имеется, II-49Д, Москва, Северное Тушино, Площадь парковки: 0, Пассажирский лифт: 6, От метро: 390, Северо-Западный, нет, Наименьшее кол-во этажей: 9, Наибольшее кол-во этажей: 9, Планерная, Кол-во помещений: 215, Кол-во нежилых помещений: 0, Год ввода в эксплуатацию: 1967, 4-комн, Кол-во жилых помещений: 215, Не присвоен, дом 14, корпус 2, да, да, да, да, да, да, Имеется, Грузовых лифтов: 0, Год постройки: 1967, Планерная улица, 37.437451, 55.863783
Свяжитесь со мной на счет цены
10 дн.
V55S863783L37S437451V

На карте


Условия сделки

Источник


Старт продаж

Возможно заинтересует