Top.Mail.Ru

Фестивальная ул., д. 48, к. 2

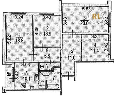
База каталог, Кол-во подъездов: 2, КОПЭ, Москва, Головинский, Площадь парковки: 0, Пассажирский лифт: 4, От метро: 2600, Северный, нет, Наименьшее кол-во этажей: 22, Наибольшее кол-во этажей: 22, Беломорская, Кол-во помещений: 178, Кол-во нежилых помещений: 4, Год ввода в эксплуатацию: 2003, 4-комн, Кол-во жилых помещений: 174, D, дом 48, корпус 2, нет, да, нет, нет, нет, нет, Грузовых лифтов: 2, Год постройки: 2003, Фестивальная улица, 37.512020, 55.864060
Свяжитесь со мной на счет цены
10 дн.
V55S864060L37S512020V

На карте


Условия сделки

Источник


Старт продаж

Возможно заинтересует