Top.Mail.Ru

Дегунинская ул., д. 13, к. 2

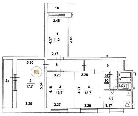
База каталог, Кол-во подъездов: 4, I605-АМ, Москва, Западное Дегунино, Площадь парковки: 0, Пассажирский лифт: 8, От метро: 1120, Северный, нет, Наименьшее кол-во этажей: 12, Наибольшее кол-во этажей: 12, Селигерская, Кол-во помещений: 192, Кол-во нежилых помещений: 1, Год ввода в эксплуатацию: 1978, 4-комн, Кол-во жилых помещений: 191, D, дом 13, корпус 2, нет, да, да, да, да, нет, Грузовых лифтов: 0, Год постройки: 1978, Дегунинская улица, 37.532592, 55.864864
Свяжитесь со мной на счет цены
10 дн.
V55S864864L37S532592V

На карте


Условия сделки

Источник


Старт продаж

Возможно заинтересует