Top.Mail.Ru

улица Довженко, д. 8, к. 1

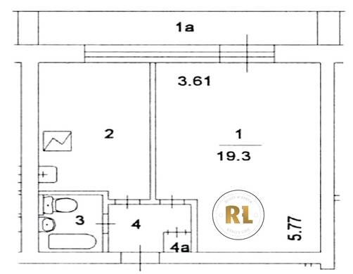
База каталог, Пассажирский лифт: 1, Минская, Наибольшее кол-во этажей: 16, Наименьшее кол-во этажей: 16, нет, Западный, От метро: 1050, Нет, Кол-во подъездов: 1, Площадь парковки: 0, Раменки, Москва, II-68, Отсутствует, нет, Кол-во помещений: 111, Кол-во нежилых помещений: 0, Год ввода в эксплуатацию: 1980, да, Год постройки: 1980, Нет, Грузовых лифтов: 1, Отсутствует, да, да, да, 1-комн, да, нет, дом 8, корпус 1, Нет, С, Кол-во жилых помещений: 111, улица Довженко, 37.510915, 55.722096
Свяжитесь со мной на счет цены
10 дн.
O55S722096L37S510915O

На карте


Условия сделки

Источник


Старт продаж

Возможно заинтересует