Top.Mail.Ru

Енисейская ул., д. 17, к. 1

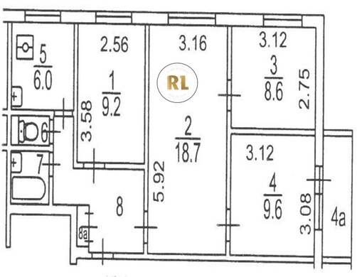
База каталог, Кол-во подъездов: 6, II-49Д, Москва, Бабушкинский, Пассажирский лифт: 6, От метро: 112, Северо-Восточный, да, Наименьшее кол-во этажей: 1, Наибольшее кол-во этажей: 9, Бабушкинская, Кол-во помещений: 218, Кол-во нежилых помещений: 15, Год ввода в эксплуатацию: 1968, 4-комн, Кол-во жилых помещений: 203, Не присвоен, дом 17, корпус 1, да, да, да, да, да, да, Грузовых лифтов: 0, Год постройки: 1968, Енисейская улица, 37.662614, 55.867879
Свяжитесь со мной на счет цены
10 дн.
V55S867879L37S662614V

На карте


Условия сделки

Источник


Старт продаж

Возможно заинтересует