Top.Mail.Ru

Заповедная ул., д. 18, к. 3

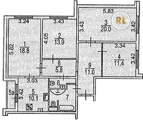
База каталог, Кол-во подъездов: 1, Имеется, КОПЭ, Москва, Южное Медведково, Площадь парковки: 0, Пассажирский лифт: 3, От метро: 1770, Северо-Восточный, нет, Наименьшее кол-во этажей: 25, Наибольшее кол-во этажей: 25, Свиблово, Кол-во помещений: 127, Кол-во нежилых помещений: 6, Год ввода в эксплуатацию: 2009, 4-комн, Кол-во жилых помещений: 121, Не присвоен, дом 18, корпус 3, нет, да, да, да, нет, нет, Имеется, Грузовых лифтов: 0, Год постройки: 2009, Заповедная улица, 37.638305, 55.868379
Свяжитесь со мной на счет цены
10 дн.
V55S868379L37S638305V

На карте


Условия сделки

Источник


Старт продаж

Возможно заинтересует