Top.Mail.Ru

Заповедная ул., д. 16, к. 3

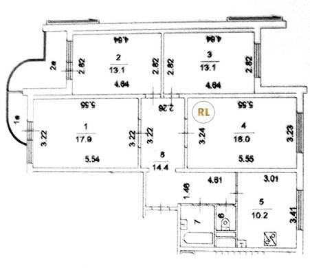
База каталог, Кол-во подъездов: 3, П-3M, Москва, Южное Медведково, Площадь парковки: 0, Пассажирский лифт: 3, От метро: 1910, Северо-Восточный, нет, Наименьшее кол-во этажей: 16, Наибольшее кол-во этажей: 16, Свиблово, Кол-во помещений: 144, Кол-во нежилых помещений: 0, Год ввода в эксплуатацию: 2009, 4-комн, Кол-во жилых помещений: 144, Не присвоен, дом 16, корпус 3, нет, да, да, да, нет, нет, Имеется, Грузовых лифтов: 3, Год постройки: 2009, Заповедная улица, 37.637192, 55.868799
Свяжитесь со мной на счет цены
10 дн.
V55S868799L37S637192V

На карте


Условия сделки

Источник


Старт продаж

Возможно заинтересует