Top.Mail.Ru

Заповедная ул., д. 18, к. 4

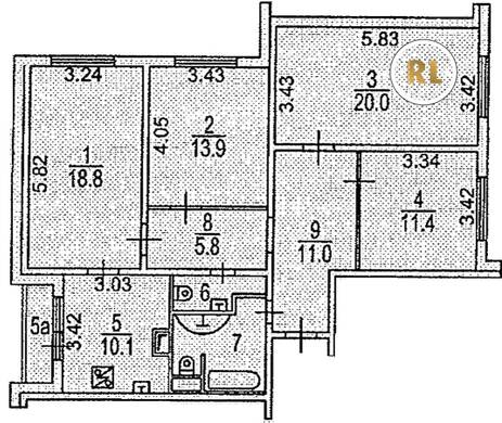
База каталог, Кол-во подъездов: 1, КОПЭ, Москва, Южное Медведково, Площадь парковки: 0, Пассажирский лифт: 1, От метро: 1820, Северо-Восточный, нет, Наименьшее кол-во этажей: 25, Наибольшее кол-во этажей: 25, Свиблово, Кол-во помещений: 144, Кол-во нежилых помещений: 1, Год ввода в эксплуатацию: 2009, 4-комн, Кол-во жилых помещений: 143, Не присвоен, дом 18, корпус 4, нет, да, да, да, нет, нет, Грузовых лифтов: 2, Год постройки: 2009, Заповедная улица, 37.638288, 55.868869
Свяжитесь со мной на счет цены
10 дн.
V55S868869L37S638288V

На карте


Условия сделки

Источник


Старт продаж

Возможно заинтересует