Top.Mail.Ru

улица Менжинского, д. 29

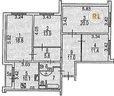
База каталог, Кол-во подъездов: 4, Отсутствует, КОПЭ, Москва, Бабушкинский, Площадь парковки: 1,8, Пассажирский лифт: 8, От метро: 580, Северо-Восточный, да, Наименьшее кол-во этажей: 22, Наибольшее кол-во этажей: 22, Бабушкинская, Кол-во помещений: 342, Кол-во нежилых помещений: 13, Год ввода в эксплуатацию: 2000, 4-комн, Кол-во жилых помещений: 329, Не присвоен, дом 29, да, да, да, да, да, да, Имеется, Грузовых лифтов: 4, Год постройки: 2000, улица Менжинского, 37.655984, 55.870390
Свяжитесь со мной на счет цены
10 дн.
V55S870390L37S655984V

На карте


Условия сделки

Источник


Старт продаж

Возможно заинтересует