Top.Mail.Ru

Енисейская ул., д. 24

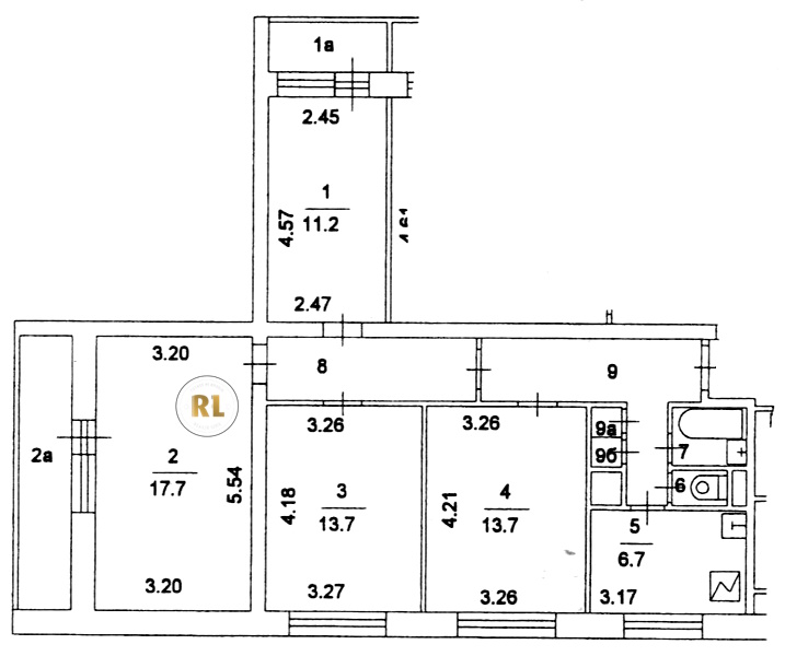
База каталог, Кол-во подъездов: 4, I605-АМ, Москва, Бабушкинский, Площадь парковки: 0, Пассажирский лифт: 8, От метро: 163, Северо-Восточный, нет, Наименьшее кол-во этажей: 12, Наибольшее кол-во этажей: 12, Бабушкинская, Кол-во помещений: 180, Кол-во нежилых помещений: 0, Год ввода в эксплуатацию: 1980, 4-комн, Кол-во жилых помещений: 180, Не присвоен, дом 24, да, да, да, да, да, да, Грузовых лифтов: 0, Год постройки: 1980, Енисейская улица, 37.667501, 55.870607
Свяжитесь со мной на счет цены
10 дн.
V55S870607L37S667501V

На карте


Условия сделки

Источник


Старт продаж

Возможно заинтересует