Top.Mail.Ru

Енисейская ул., д. 25

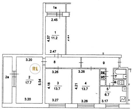
База каталог, Кол-во подъездов: 4, I605-АМ, Москва, Бабушкинский, Площадь парковки: 0, Пассажирский лифт: 8, От метро: 121, Северо-Восточный, нет, Наименьшее кол-во этажей: 1, Наибольшее кол-во этажей: 12, Бабушкинская, Кол-во помещений: 192, Кол-во нежилых помещений: 1, Год ввода в эксплуатацию: 1979, 4-комн, Кол-во жилых помещений: 191, Не присвоен, дом 25, да, да, да, да, да, да, Грузовых лифтов: 0, Год постройки: 1978, Енисейская улица, 37.664105, 55.871329
Свяжитесь со мной на счет цены
10 дн.
V55S871329L37S664105V

На карте


Условия сделки

Источник


Старт продаж

Возможно заинтересует