Top.Mail.Ru

Енисейская ул., д. 29

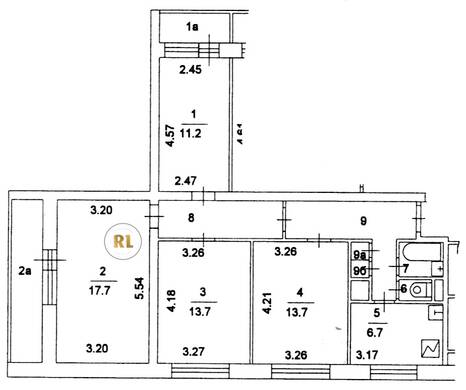
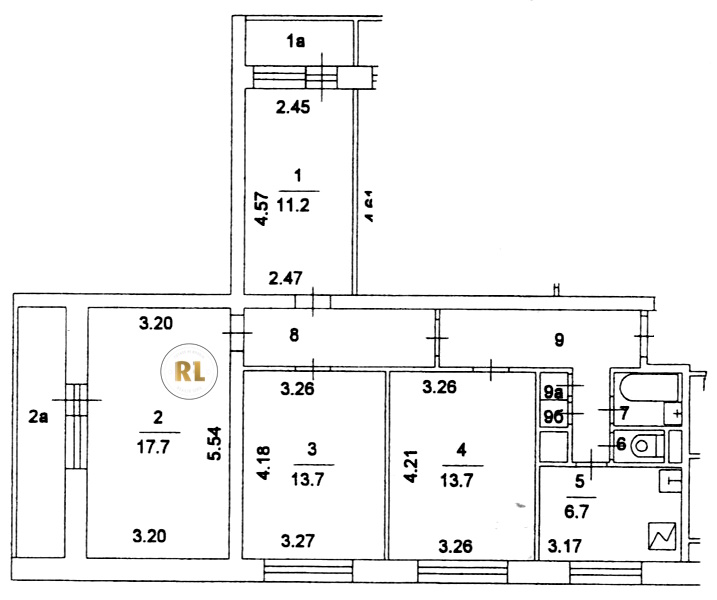
База каталог, Кол-во подъездов: 6, I605-АМ, Москва, Бабушкинский, Пассажирский лифт: 12, От метро: 269, Северо-Восточный, да, Наименьшее кол-во этажей: 1, Наибольшее кол-во этажей: 12, Бабушкинская, Кол-во помещений: 291, Кол-во нежилых помещений: 5, Год ввода в эксплуатацию: 1978, 4-комн, Кол-во жилых помещений: 286, Не присвоен, дом 29, да, да, да, да, да, да, Грузовых лифтов: 0, Год постройки: 1978, Енисейская улица, 37.664842, 55.873309
Свяжитесь со мной на счет цены
10 дн.
V55S873309L37S664842V

На карте


Условия сделки

Источник


Старт продаж

Возможно заинтересует