Top.Mail.Ru

Староватутинский проезд, д. 11

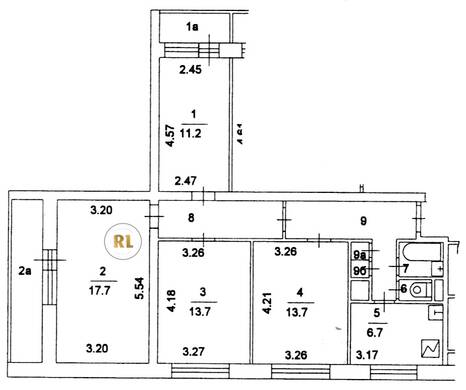
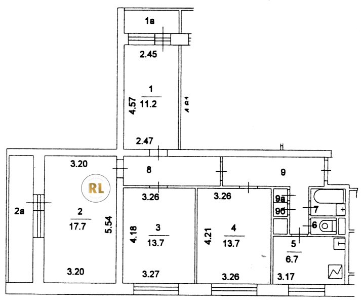
База каталог, Кол-во подъездов: 8, Имеется, I605-АМ, Москва, Бабушкинский, Пассажирский лифт: 16, От метро: 620, Северо-Восточный, да, Наименьшее кол-во этажей: 12, Наибольшее кол-во этажей: 12, Бабушкинская, Кол-во помещений: 373, Кол-во нежилых помещений: 2, Год ввода в эксплуатацию: 1981, 4-комн, Кол-во жилых помещений: 371, E, дом 11, нет, да, да, да, да, да, Имеется, Грузовых лифтов: 0, Год постройки: 1981, Староватутинский проезд, 37.669899, 55.874067
Свяжитесь со мной на счет цены
10 дн.
V55S874067L37S669899V

На карте


Условия сделки

Источник


Старт продаж

Возможно заинтересует