Top.Mail.Ru

Дубнинская ул., д. 26, к. 5

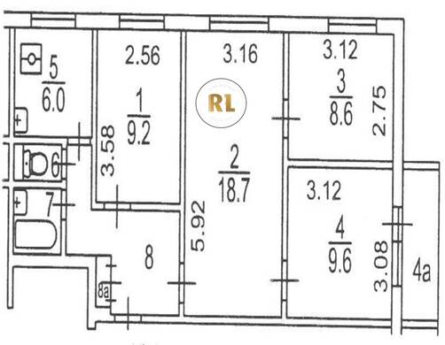
База каталог, Кол-во подъездов: 4, Имеется, II-49Д, Москва, Восточное Дегунино, Площадь парковки: 0, Пассажирский лифт: 4, От метро: 1560, Северный, нет, Наименьшее кол-во этажей: 9, Наибольшее кол-во этажей: 9, Селигерская, Кол-во помещений: 144, Кол-во нежилых помещений: 0, Год ввода в эксплуатацию: 1979, 4-комн, Кол-во жилых помещений: 144, Не присвоен, дом 26, корпус 5, нет, да, да, да, да, нет, Имеется, Грузовых лифтов: 0, Год постройки: 1979, Дубнинская улица, 37.561823, 55.874900
Свяжитесь со мной на счет цены
10 дн.
V55S874900L37S561823V

На карте


Условия сделки

Источник


Старт продаж

Возможно заинтересует