Top.Mail.Ru

проезд Шокальского, д. 10

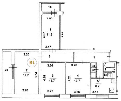
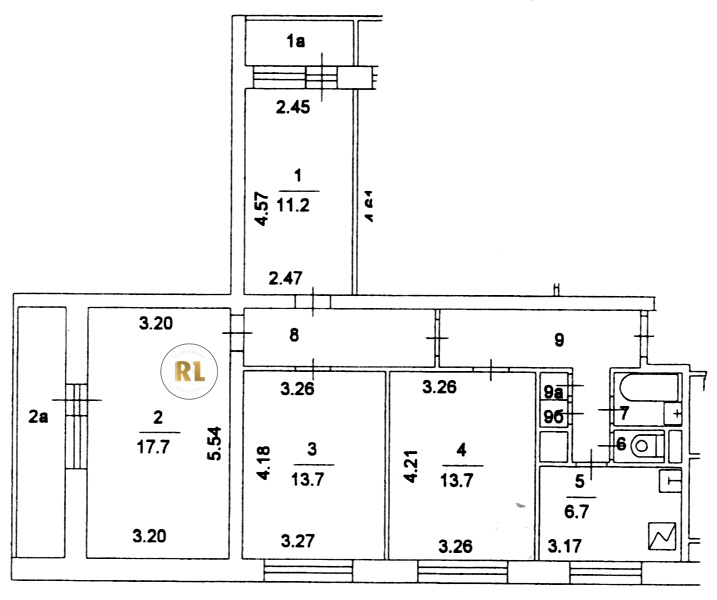
База каталог, Кол-во подъездов: 4, I605-АМ, Москва, Южное Медведково, Площадь парковки: 0, Пассажирский лифт: 8, От метро: 1340, Северо-Восточный, нет, Наименьшее кол-во этажей: 12, Наибольшее кол-во этажей: 12, Бабушкинская, Кол-во помещений: 191, Кол-во нежилых помещений: 0, Год ввода в эксплуатацию: 1978, 4-комн, Кол-во жилых помещений: 191, Не присвоен, дом 10, нет, да, да, да, да, нет, Имеется, Грузовых лифтов: 0, Год постройки: 1978, проезд Шокальского, 37.647657, 55.875016
Свяжитесь со мной на счет цены
10 дн.
V55S875016L37S647657V

На карте


Условия сделки

Источник


Старт продаж

Возможно заинтересует