Top.Mail.Ru

улица 800-летия Москвы, д. 2, к. 1

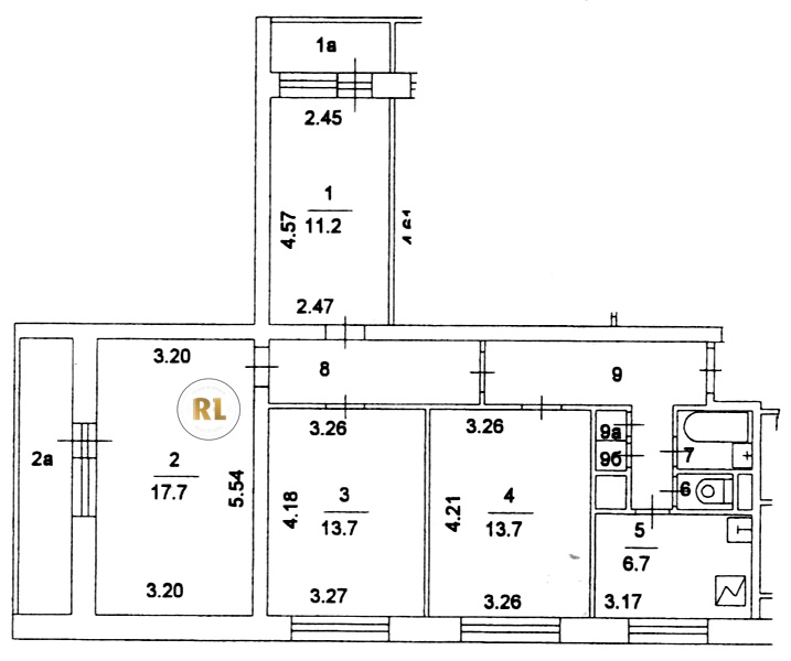
База каталог, Кол-во подъездов: 8, Отсутствует, I605-АМ, Москва, Дмитровский, Площадь парковки: 855, Пассажирский лифт: 16, От метро: 1610, Северный, да, Наименьшее кол-во этажей: 12, Наибольшее кол-во этажей: 12, Селигерская, Кол-во помещений: 386, Кол-во нежилых помещений: 3, Год ввода в эксплуатацию: 1979, 4-комн, Кол-во жилых помещений: 383, E, дом 2, корпус 1, нет, да, да, да, нет, нет, Имеется, Грузовых лифтов: 0, Год постройки: 1979, улица 800-летия Москвы, 37.531029, 55.875299
Свяжитесь со мной на счет цены
10 дн.
V55S875299L37S531029V

На карте


Условия сделки

Источник


Старт продаж

Возможно заинтересует