Top.Mail.Ru

проезд Шокальского, д. 12Б

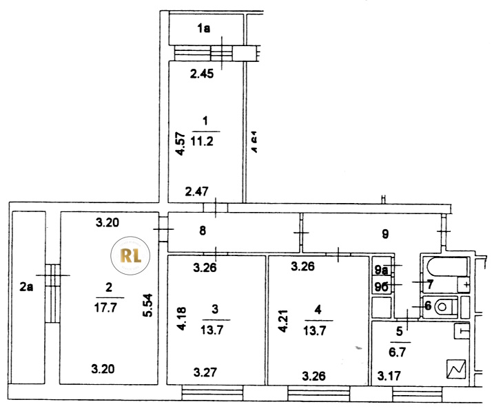
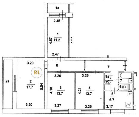
База каталог, Кол-во подъездов: 4, I605-АМ, Москва, Южное Медведково, Площадь парковки: 0, Пассажирский лифт: 8, От метро: 1380, Северо-Восточный, нет, Наименьшее кол-во этажей: 12, Наибольшее кол-во этажей: 12, Бабушкинская, Кол-во помещений: 191, Кол-во нежилых помещений: 0, Год ввода в эксплуатацию: 1978, 4-комн, Кол-во жилых помещений: 191, Не присвоен, дом 12Б, нет, да, да, да, да, нет, Имеется, Грузовых лифтов: 0, Год постройки: 1978, проезд Шокальского, 37.647998, 55.875849
Свяжитесь со мной на счет цены
10 дн.
V55S875849L37S647998V

На карте


Условия сделки

Источник


Старт продаж

Возможно заинтересует