Top.Mail.Ru

Ангарская ул., д. 17

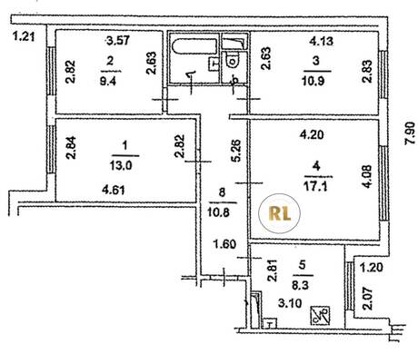
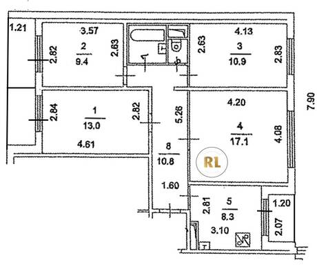
База каталог, Кол-во подъездов: 4, П-30, Москва, Западное Дегунино, Пассажирский лифт: 8, От метро: 2690, Северный, да, Наименьшее кол-во этажей: 14, Наибольшее кол-во этажей: 14, Селигерская, Кол-во помещений: 224, Кол-во нежилых помещений: 4, Год ввода в эксплуатацию: 1988, 4-комн, Кол-во жилых помещений: 220, дом 17, нет, да, нет, нет, нет, нет, Грузовых лифтов: 0, Год постройки: 1988, Ангарская улица, 37.516000, 55.875875
Свяжитесь со мной на счет цены
10 дн.
V55S875875L37S516000V

На карте


Условия сделки

Источник


Старт продаж

Возможно заинтересует