Top.Mail.Ru

улица Молодцова, д. 4

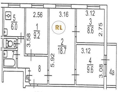
База каталог, Кол-во подъездов: 4, II-49Д, Москва, Северное Медведково, Площадь парковки: 0, Пассажирский лифт: 4, От метро: 1750, Северо-Восточный, нет, Наименьшее кол-во этажей: 9, Наибольшее кол-во этажей: 9, Медведково, Кол-во помещений: 147, Кол-во нежилых помещений: 5, Год ввода в эксплуатацию: 1966, 4-комн, Кол-во жилых помещений: 142, Не присвоен, дом 4, нет, да, да, да, нет, нет, Имеется, Грузовых лифтов: 0, Год постройки: 1966, улица Молодцова, 37.641593, 55.878268
Свяжитесь со мной на счет цены
10 дн.
V55S878268L37S641593V

На карте


Условия сделки

Источник


Старт продаж

Возможно заинтересует