Top.Mail.Ru

улица Ватутина, д. 16, к. 3

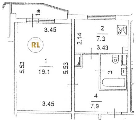
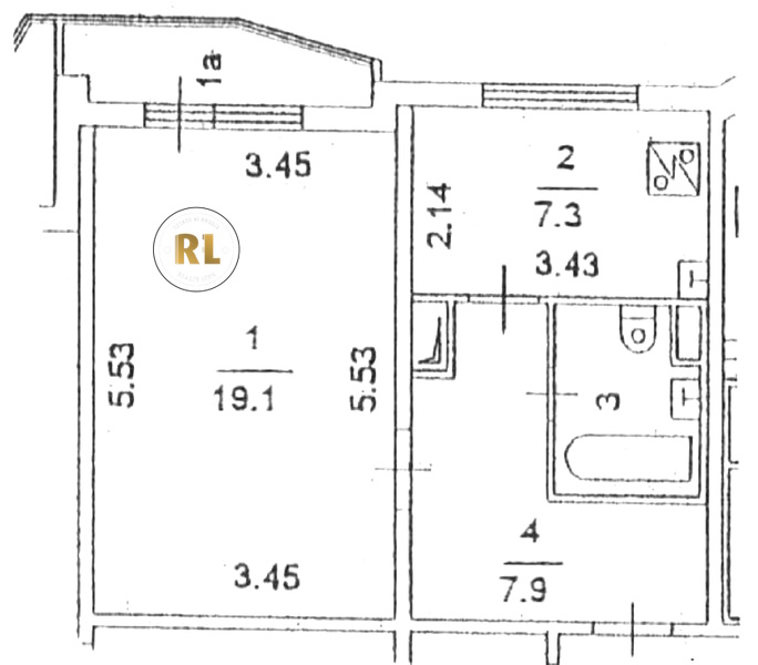
База каталог, Кол-во помещений: 111, нет, Имеется, П-44T, Москва, Фили-Давыдково, Площадь парковки: 0, Пассажирский лифт: 2, От метро: 900, Западный, нет, Наименьшее кол-во этажей: 1, Наибольшее кол-во этажей: 14, Кунцевская, Кол-во подъездов: 2, Год ввода в эксплуатацию: 2000, Кол-во нежилых помещений: 1, 1-комн, Кол-во жилых помещений: 110, дом 16, корпус 3, нет, да, да, да, да, да, Имеется, Грузовых лифтов: 3, Год постройки: 2000, улица Ватутина, 37.453405, 55.722897
Свяжитесь со мной на счет цены
10 дн.
O55S722897L37S453405O

На карте


Условия сделки

Источник


Старт продаж

Возможно заинтересует