Top.Mail.Ru

улица 800-летия Москвы, д. 3, к. 1

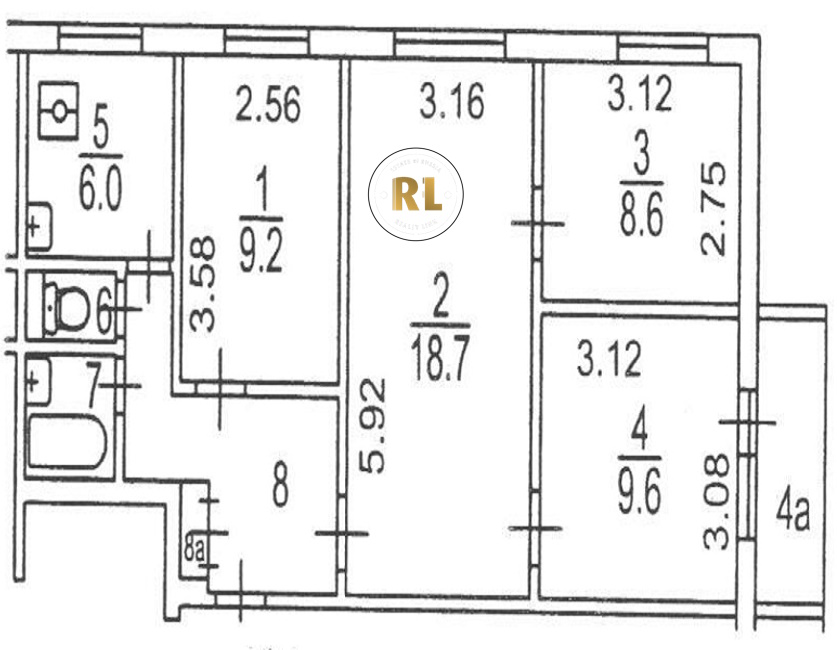
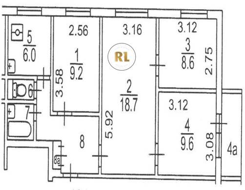
База каталог, Кол-во подъездов: 6, Имеется, II-49Д, Москва, Восточное Дегунино, Площадь парковки: 0, Пассажирский лифт: 6, От метро: 1670, Северный, нет, Наименьшее кол-во этажей: 9, Наибольшее кол-во этажей: 9, Селигерская, Кол-во помещений: 215, Кол-во нежилых помещений: 0, Год ввода в эксплуатацию: 1978, 4-комн, Кол-во жилых помещений: 215, E, дом 3, корпус 1, нет, да, да, да, нет, нет, Имеется, Грузовых лифтов: 0, Год постройки: 1978, улица 800-летия Москвы, 37.551663, 55.879611
15 000 000 Р
10 дн.
V55S879611L37S551663V
+

На карте


Условия сделки

Источник


Старт продаж