Top.Mail.Ru

проезд Шокальского, д. 30Б

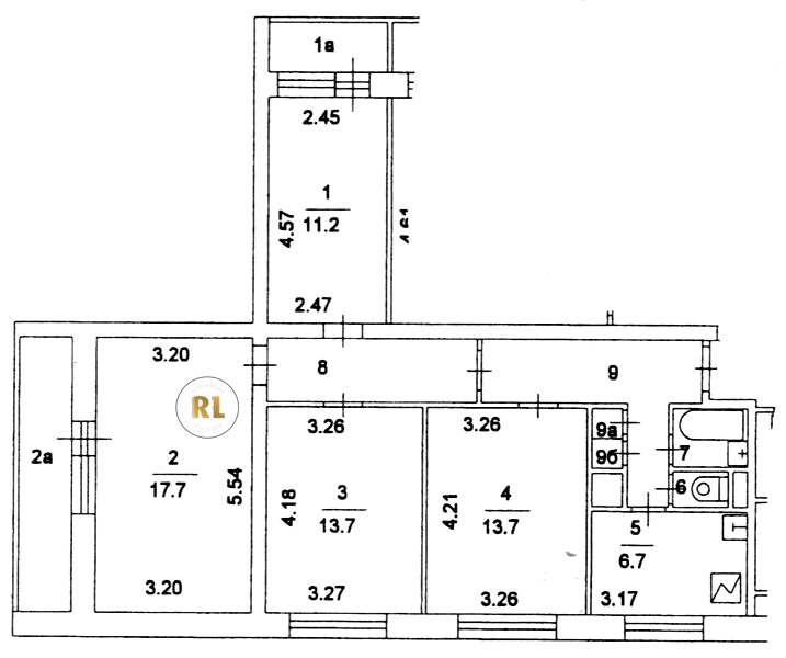
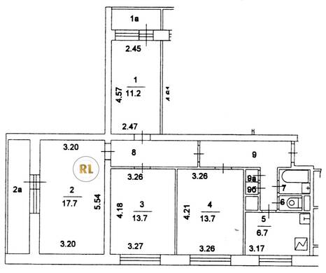
База каталог, Кол-во подъездов: 4, I605-АМ, Москва, Северное Медведково, Площадь парковки: 0, Пассажирский лифт: 8, От метро: 1080, Северо-Восточный, нет, Наименьшее кол-во этажей: 0, Наибольшее кол-во этажей: 12, Медведково, Кол-во помещений: 191, Кол-во нежилых помещений: 1, Год ввода в эксплуатацию: 1979, 4-комн, Кол-во жилых помещений: 190, А, дом 30Б, нет, да, да, да, да, да, Грузовых лифтов: 0, Год постройки: 1979, проезд Шокальского, 37.651897, 55.879879
Свяжитесь со мной на счет цены
10 дн.
V55S879879L37S651897V

На карте


Условия сделки

Источник


Старт продаж

Возможно заинтересует