Top.Mail.Ru

Осташковская ул., д. 23

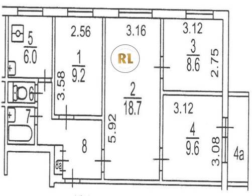
База каталог, Кол-во подъездов: 6, II-49-06, Москва, Бабушкинский, Площадь парковки: 512, Пассажирский лифт: 6, От метро: 1320, Северо-Восточный, да, Наименьшее кол-во этажей: 9, Наибольшее кол-во этажей: 9, Медведково, Кол-во помещений: 215, Кол-во нежилых помещений: 0, Год ввода в эксплуатацию: 1975, 4-комн, Кол-во жилых помещений: 215, В, дом 23, нет, да, да, да, да, нет, Имеется, Грузовых лифтов: 0, Год постройки: 1975, Осташковская улица, 37.676259, 55.881934
12 300 000 Р
10 дн.
V55S881934L37S676259V
+

На карте


Условия сделки

Источник


Старт продаж