Top.Mail.Ru

Холмогорская ул., д. 2, к. 2

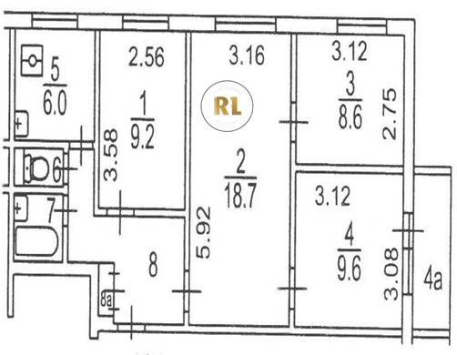
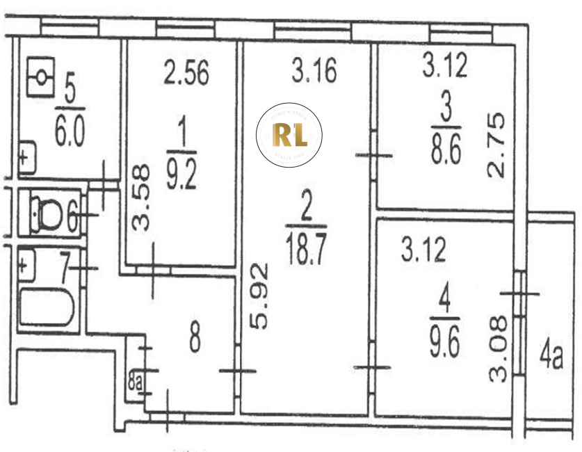
База каталог, Кол-во подъездов: 6, II-49Д, Москва, Ярославский, Площадь парковки: 0, Пассажирский лифт: 6, От метро: 4200, Северо-Восточный, нет, Наименьшее кол-во этажей: 1, Наибольшее кол-во этажей: 9, Медведково, Кол-во помещений: 221, Кол-во нежилых помещений: 6, Год ввода в эксплуатацию: 1979, 4-комн, Кол-во жилых помещений: 215, дом 2, корпус 2, нет, нет, нет, нет, нет, нет, Отсутствует, Грузовых лифтов: 0, Год постройки: 1979, Холмогорская улица, 37.720349, 55.881934
Свяжитесь со мной на счет цены
10 дн.
V55S881934L37S720349V

На карте


Условия сделки

Источник


Старт продаж

Возможно заинтересует