Top.Mail.Ru

проезд Шокальского, д. 39, к. 2

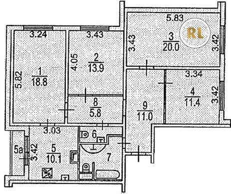
База каталог, Кол-во подъездов: 1, КОПЭ, Москва, Северное Медведково, Площадь парковки: 0, Пассажирский лифт: 2, От метро: 900, Северо-Восточный, нет, Наименьшее кол-во этажей: 18, Наибольшее кол-во этажей: 18, Медведково, Кол-во помещений: 73, Кол-во нежилых помещений: 2, Год ввода в эксплуатацию: 2006, 4-комн, Кол-во жилых помещений: 71, Не присвоен, дом 39, корпус 2, нет, да, да, да, да, да, Имеется, Грузовых лифтов: 1, Год постройки: 2006, проезд Шокальского, 37.651142, 55.882283
Свяжитесь со мной на счет цены
10 дн.
V55S882283L37S651142V

На карте


Условия сделки

Источник


Старт продаж

Возможно заинтересует