Top.Mail.Ru

проезд Шокальского, д. 41, к. 1

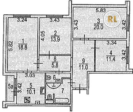
База каталог, Кол-во подъездов: 1, КОПЭ, Москва, Северное Медведково, Площадь парковки: 0, Пассажирский лифт: 2, От метро: 830, Северо-Восточный, нет, Наименьшее кол-во этажей: 18, Наибольшее кол-во этажей: 18, Медведково, Кол-во помещений: 73, Кол-во нежилых помещений: 2, Год ввода в эксплуатацию: 2007, 4-комн, Кол-во жилых помещений: 71, Не присвоен, дом 41, корпус 1, нет, да, да, да, да, да, Имеется, Грузовых лифтов: 1, Год постройки: 2007, проезд Шокальского, 37.652912, 55.882368
Свяжитесь со мной на счет цены
10 дн.
V55S882368L37S652912V

На карте


Условия сделки

Источник


Старт продаж

Возможно заинтересует