Top.Mail.Ru

проезд Шокальского, д. 47, к. 1

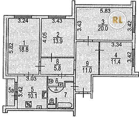
База каталог, Кол-во подъездов: 1, КОПЭ, Москва, Северное Медведково, Площадь парковки: 0, Пассажирский лифт: 2, От метро: 680, Северо-Восточный, нет, Наименьшее кол-во этажей: 18, Наибольшее кол-во этажей: 18, Медведково, Кол-во помещений: 70, Кол-во нежилых помещений: 2, Год ввода в эксплуатацию: 2008, 4-комн, Кол-во жилых помещений: 68, Не присвоен, дом 47, корпус 1, нет, да, да, да, да, да, Имеется, Грузовых лифтов: 1, Год постройки: 2008, проезд Шокальского, 37.654493, 55.882540
Свяжитесь со мной на счет цены
10 дн.
V55S882540L37S654493V

На карте


Условия сделки

Источник


Старт продаж

Возможно заинтересует