Top.Mail.Ru

Полярная ул., д. 32, к. 2

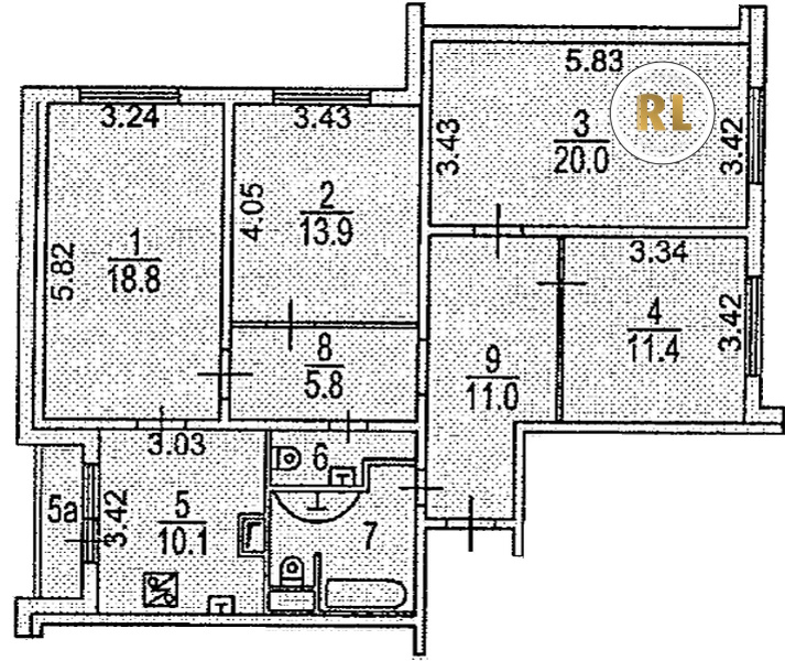
База каталог, Кол-во подъездов: 2, КОПЭ, Москва, Северное Медведково, Площадь парковки: 0, Пассажирский лифт: 4, От метро: 1420, Северо-Восточный, нет, Наименьшее кол-во этажей: 22, Наибольшее кол-во этажей: 22, Медведково, Кол-во помещений: 177, Кол-во нежилых помещений: 3, Год ввода в эксплуатацию: 2006, 4-комн, Кол-во жилых помещений: 174, Не присвоен, дом 32, корпус 2, нет, да, да, да, да, нет, Имеется, Грузовых лифтов: 2, Год постройки: 2006, Полярная улица, 37.642923, 55.883186
Свяжитесь со мной на счет цены
10 дн.
V55S883186L37S642923V

На карте


Условия сделки

Источник


Старт продаж

Возможно заинтересует