Top.Mail.Ru

Широкая ул., д. 17, к. 1

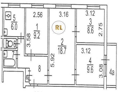
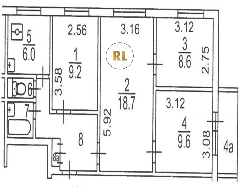
База каталог, Кол-во подъездов: 8, II-49Д, Москва, Северное Медведково, Площадь парковки: 0, Пассажирский лифт: 8, От метро: 460, Северо-Восточный, нет, Наименьшее кол-во этажей: 9, Наибольшее кол-во этажей: 9, Медведково, Кол-во помещений: 295, Кол-во нежилых помещений: 9, Год ввода в эксплуатацию: 1969, 4-комн, Кол-во жилых помещений: 286, Не присвоен, дом 17, корпус 1, да, да, да, да, да, да, Имеется, Грузовых лифтов: 0, Год постройки: 1969, Широкая улица, 37.667806, 55.888043
Свяжитесь со мной на счет цены
10 дн.
V55S888043L37S667806V

На карте


Условия сделки

Источник


Старт продаж

Возможно заинтересует