Top.Mail.Ru

улица Коненкова, д. 4

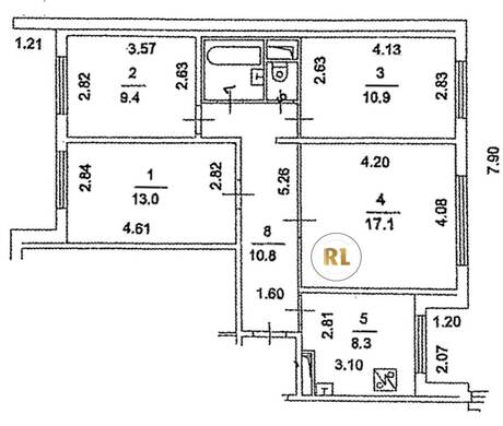
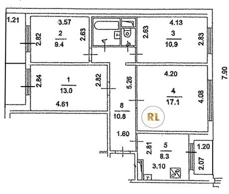
База каталог, Кол-во подъездов: 6, П-30, Москва, Бибирево, Площадь парковки: 0, Пассажирский лифт: 12, От метро: 600, Северо-Восточный, нет, Наименьшее кол-во этажей: 12, Наибольшее кол-во этажей: 12, Бибирево, Кол-во помещений: 297, Кол-во нежилых помещений: 11, Год ввода в эксплуатацию: 1975, 4-комн, Кол-во жилых помещений: 286, В+, дом 4, нет, да, да, да, да, да, Грузовых лифтов: 0, Год постройки: 1975, улица Коненкова, 37.605068, 55.888255
Свяжитесь со мной на счет цены
10 дн.
V55S888255L37S605068V

На карте


Условия сделки

Источник


Старт продаж

Возможно заинтересует