Top.Mail.Ru

Широкая ул., д. 11

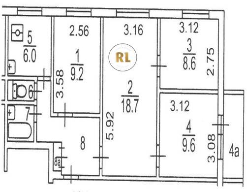
База каталог, Кол-во подъездов: 4, II-49, Москва, Северное Медведково, Площадь парковки: 0, Пассажирский лифт: 4, От метро: 97, Северо-Восточный, нет, Наименьшее кол-во этажей: 9, Наибольшее кол-во этажей: 9, Медведково, Кол-во помещений: 148, Кол-во нежилых помещений: 6, Год ввода в эксплуатацию: 1969, 4-комн, Кол-во жилых помещений: 142, Не присвоен, дом 11, да, да, да, да, да, да, Имеется, Грузовых лифтов: 0, Год постройки: 1969, Широкая улица, 37.661114, 55.888619
Свяжитесь со мной на счет цены
10 дн.
V55S888619L37S661114V

На карте


Условия сделки

Источник


Старт продаж

Возможно заинтересует