Top.Mail.Ru

улица Коненкова, д. 6А

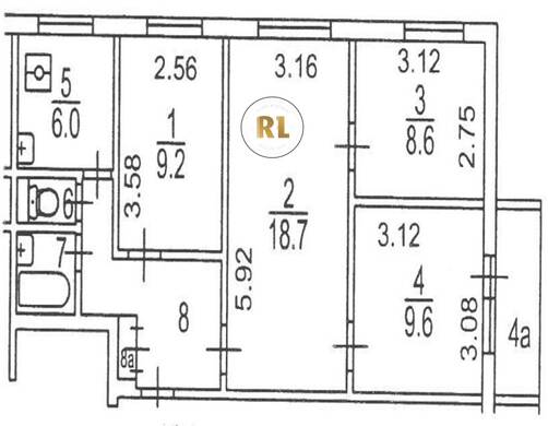
База каталог, Кол-во подъездов: 8, II-49Д, Москва, Бибирево, Площадь парковки: 0, Пассажирский лифт: 8, От метро: 820, Северо-Восточный, нет, Наименьшее кол-во этажей: 9, Наибольшее кол-во этажей: 9, Бибирево, Кол-во помещений: 298, Кол-во нежилых помещений: 15, Год ввода в эксплуатацию: 1974, 4-комн, Кол-во жилых помещений: 283, А, дом 6А, нет, да, да, да, да, да, Грузовых лифтов: 0, Год постройки: 1974, улица Коненкова, 37.609541, 55.888957
Свяжитесь со мной на счет цены
10 дн.
V55S888957L37S609541V

На карте


Условия сделки

Источник


Старт продаж

Возможно заинтересует