Top.Mail.Ru

Широкая ул., д. 1, к. 4

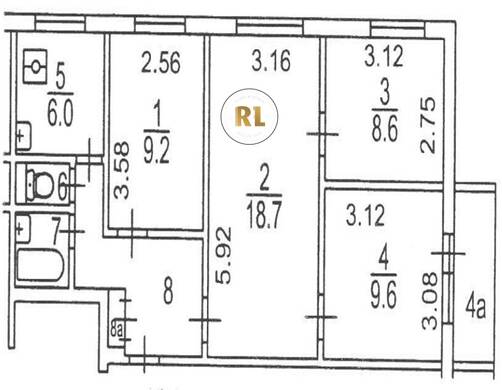
База каталог, Кол-во подъездов: 6, II-49-06, Москва, Северное Медведково, Площадь парковки: 0, Пассажирский лифт: 6, От метро: 790, Северо-Восточный, нет, Наименьшее кол-во этажей: 9, Наибольшее кол-во этажей: 9, Медведково, Кол-во помещений: 215, Кол-во нежилых помещений: 1, Год ввода в эксплуатацию: 1974, 4-комн, Кол-во жилых помещений: 214, Не присвоен, дом 1, корпус 4, нет, да, да, да, да, да, Грузовых лифтов: 0, Год постройки: 1974, Широкая улица, 37.650460, 55.888972
Свяжитесь со мной на счет цены
10 дн.
V55S888972L37S650460V

На карте


Условия сделки

Источник


Старт продаж

Возможно заинтересует