Top.Mail.Ru

Широкая ул., д. 19, к. 2

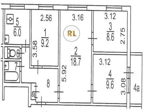
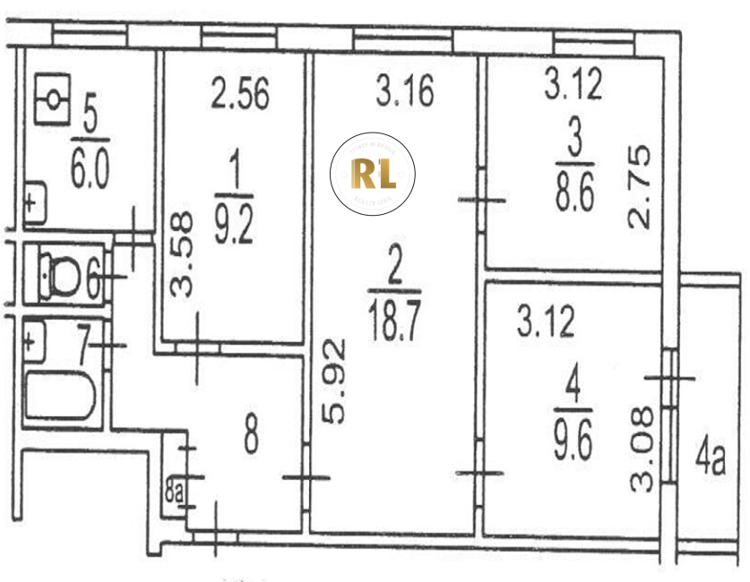
База каталог, Кол-во подъездов: 6, II-49Д, Москва, Северное Медведково, Площадь парковки: 0, Пассажирский лифт: 6, От метро: 700, Северо-Восточный, нет, Наименьшее кол-во этажей: 9, Наибольшее кол-во этажей: 9, Медведково, Кол-во помещений: 223, Кол-во нежилых помещений: 8, Год ввода в эксплуатацию: 1969, 4-комн, Кол-во жилых помещений: 215, Не присвоен, дом 19, корпус 2, нет, да, да, да, да, да, Имеется, Грузовых лифтов: 0, Год постройки: 1969, Широкая улица, 37.669872, 55.889563
Свяжитесь со мной на счет цены
10 дн.
V55S889563L37S669872V

На карте


Условия сделки

Источник


Старт продаж

Возможно заинтересует