Top.Mail.Ru

Широкая ул., д. 19, к. 3

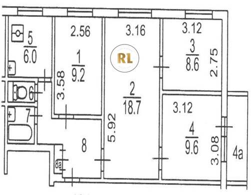
База каталог, Кол-во подъездов: 4, II-49Д, Москва, Северное Медведково, Площадь парковки: 0, Пассажирский лифт: 4, От метро: 880, Северо-Восточный, нет, Наименьшее кол-во этажей: 9, Наибольшее кол-во этажей: 9, Медведково, Кол-во помещений: 149, Кол-во нежилых помещений: 5, Год ввода в эксплуатацию: 1972, 4-комн, Кол-во жилых помещений: 144, Не присвоен, дом 19, корпус 3, нет, да, да, да, да, да, Имеется, Грузовых лифтов: 0, Год постройки: 1972, Широкая улица, 37.670789, 55.890492
Свяжитесь со мной на счет цены
10 дн.
V55S890492L37S670789V

На карте


Условия сделки

Источник


Старт продаж

Возможно заинтересует