Top.Mail.Ru

Студеный проезд, д. 38, к. 2

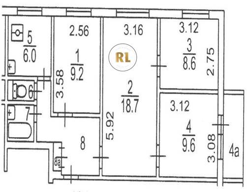
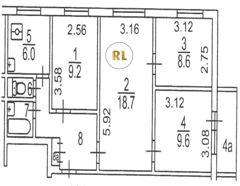
База каталог, Кол-во подъездов: 6, II-49Д, Москва, Северное Медведково, Пассажирский лифт: 6, От метро: 970, Северо-Восточный, да, Наименьшее кол-во этажей: 9, Наибольшее кол-во этажей: 9, Медведково, Кол-во помещений: 215, Кол-во нежилых помещений: 0, Год ввода в эксплуатацию: 1973, 4-комн, Кол-во жилых помещений: 215, дом 38, корпус 2, нет, да, да, да, да, да, Грузовых лифтов: 0, Год постройки: 1973, Студеный проезд, 37.672612, 55.890704
Свяжитесь со мной на счет цены
10 дн.
V55S890704L37S672612V

На карте


Условия сделки

Источник


Старт продаж

Возможно заинтересует