Top.Mail.Ru

улица Корнейчука, д. 59

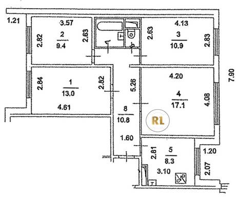
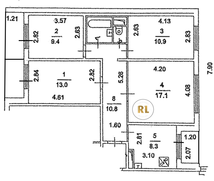
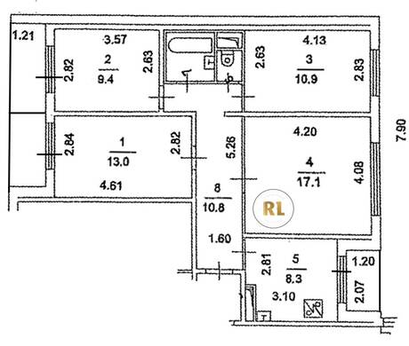
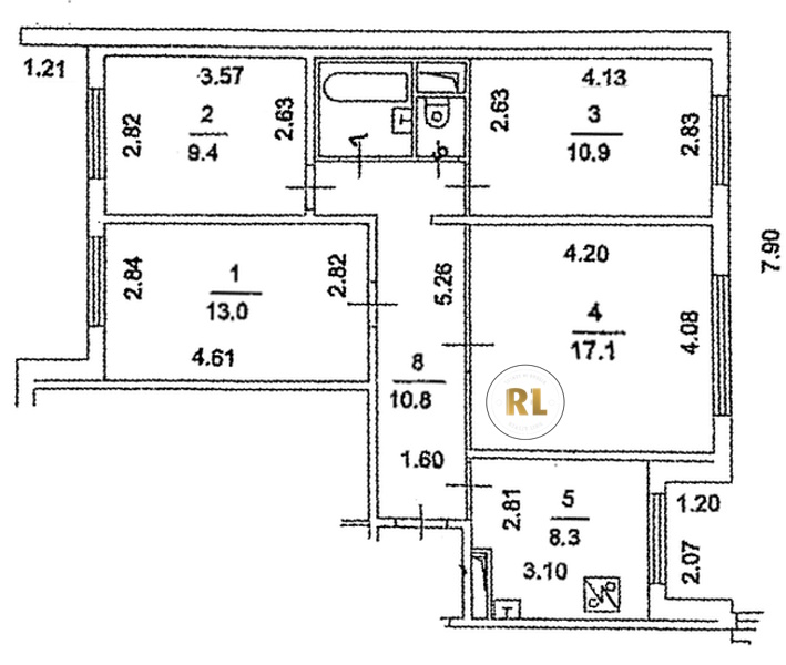
База каталог, Кол-во подъездов: 5, П-30, Москва, Бибирево, Площадь парковки: 0, Пассажирский лифт: 10, От метро: 1560, Северо-Восточный, нет, Наименьшее кол-во этажей: 12, Наибольшее кол-во этажей: 12, Бибирево, Кол-во помещений: 248, Кол-во нежилых помещений: 13, Год ввода в эксплуатацию: 1982, 4-комн, Кол-во жилых помещений: 235, А, дом 59, нет, да, да, да, да, нет, Грузовых лифтов: 0, Год постройки: 1982, улица Корнейчука, 37.624525, 55.890901
Свяжитесь со мной на счет цены
10 дн.
V55S890901L37S624525V

На карте


Условия сделки

Источник


Старт продаж

Возможно заинтересует