Top.Mail.Ru

улица Коненкова, д. 11В

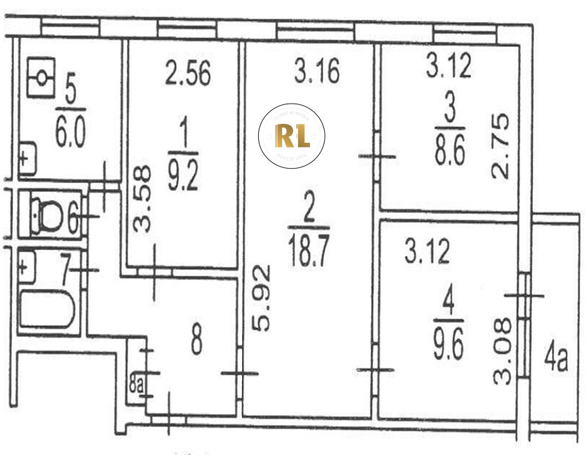
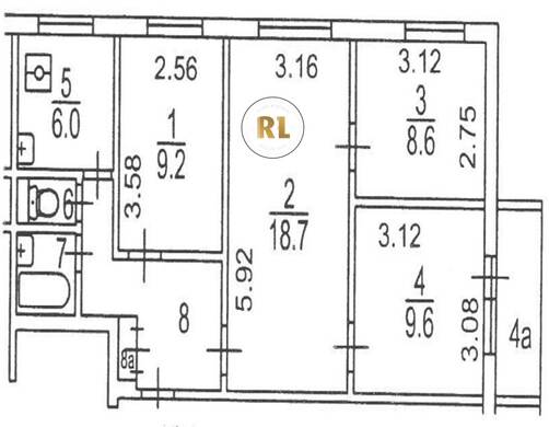
База каталог, Кол-во подъездов: 8, II-49-08/Ю, Москва, Бибирево, Площадь парковки: 0, Пассажирский лифт: 8, От метро: 920, Северо-Восточный, нет, Наименьшее кол-во этажей: 9, Наибольшее кол-во этажей: 9, Бибирево, Кол-во помещений: 295, Кол-во нежилых помещений: 8, Год ввода в эксплуатацию: 1974, 4-комн, Кол-во жилых помещений: 287, А, дом 11В, нет, да, да, да, да, да, Грузовых лифтов: 0, Год постройки: 1974, улица Коненкова, 37.603415, 55.891183
Свяжитесь со мной на счет цены
10 дн.
V55S891183L37S603415V

На карте


Условия сделки

Источник


Старт продаж

Возможно заинтересует