Top.Mail.Ru

Мурановская ул., д. 7Б

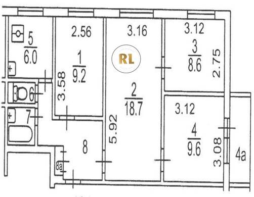
База каталог, Кол-во подъездов: 8, II-49Д, Москва, Бибирево, Площадь парковки: 0, Пассажирский лифт: 8, От метро: 910, Северо-Восточный, нет, Наименьшее кол-во этажей: 9, Наибольшее кол-во этажей: 9, Алтуфьево, Кол-во помещений: 295, Кол-во нежилых помещений: 8, Год ввода в эксплуатацию: 1974, 4-комн, Кол-во жилых помещений: 287, А, дом 7Б, нет, да, да, да, да, да, Грузовых лифтов: 0, Год постройки: 1974, Мурановская улица, 37.595150, 55.892001
Свяжитесь со мной на счет цены
10 дн.
V55S892001L37S595150V

На карте


Условия сделки

Источник


Старт продаж

Возможно заинтересует