Top.Mail.Ru

Мурановская ул., д. 7

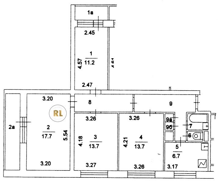
База каталог, Кол-во подъездов: 8, I605-АМ, Москва, Бибирево, Площадь парковки: 0, Пассажирский лифт: 16, От метро: 1040, Северо-Восточный, нет, Наименьшее кол-во этажей: 12, Наибольшее кол-во этажей: 12, Алтуфьево, Кол-во помещений: 394, Кол-во нежилых помещений: 15, Год ввода в эксплуатацию: 1975, 4-комн, Кол-во жилых помещений: 379, А, дом 7, нет, да, да, да, да, да, Грузовых лифтов: 0, Год постройки: 1975, Мурановская улица, 37.597441, 55.892259
Свяжитесь со мной на счет цены
10 дн.
V55S892259L37S597441V

На карте


Условия сделки

Источник


Старт продаж

Возможно заинтересует